Appartamento in vendita a Modica

In vendita
Appartamento
Modica (Modica Sorda)
155.000 €
Descrizione
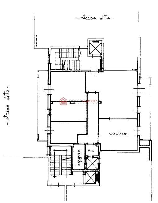
Appartamento di 125 mq con garage – Ottima posizione, zona servita

In una delle zone più comode e ben servite, proponiamo in vendita un ampio appartamento di 125 mq con garage.
Già all’ingresso si percepisce la grande zona living, luminosa e accogliente, in comunicazione diretta con una spaziosa cucina, ideale per chi ama vivere e condividere gli ambienti giorno.
La zona notte, ben disimpegnata, ospita una camera matrimoniale, due camerette, bagno e lavanderia.
L’appartamento si presenta in ottimo stato di manutenzione, dotato di infissi in legno con doppio vetro e riscaldamento autonomo a GPL.
Un’ottima soluzione per chi desidera spazi ampi, comfort e tranquillità, senza rinunciare alla comodità dei servizi.
Caratteristiche principali
Codice:
MV781
Città:
Modica (Modica Sorda)
Categoria:
Appartamento
Locali:
5
Camere:
3
Bagni:
2
Mq:
125
Box:
1
Mq Box:
16
Posti auto:
1
Balconi:
2
Classe energetica:
In fase di valutazione
Stato Immobile:
Buono
Grado:
Medio
Posizione:
Centro
Panorama:
Vista Aperta
Orientamento:
Sud Est
Lati Liberi:
2
Arredi:
Non Arredato
Tipo Soggiorno:
Doppio
Tipo Cucina:
Abitabile
Riscaldamento:
Autonomo
Tipo Riscaldam.:
Caldaia
Tipo Impianto:
Radiatori
Fonte Energetica:
Metano
Acqua Calda:
Autonoma
Raffrescamento:
Split
Infissi:
Legno Doppio Vetro
Serramenti:
Buono
Persiana:
Tapparella PVC
Pavim. Giorno:
Ceramica
Pavim. Notte:
Ceramica
Pavim. Cucina:
Ceramica
Pavim. Bagno:
Ceramica
Accessori
Aria Condizionata
Ascensore
Doppi Vetri
Video
Cookie preference